Beautiful 3-Room Apartment Ski-In Ski-Out Cervinia
Galeria de fotos
Apenas pré-visualização - ver todas as fotografias do hotel
Ver todas as fotos de 30 1 /
30
As melhores opções para as suas datas de viagem
Mostrar hotel no mapa
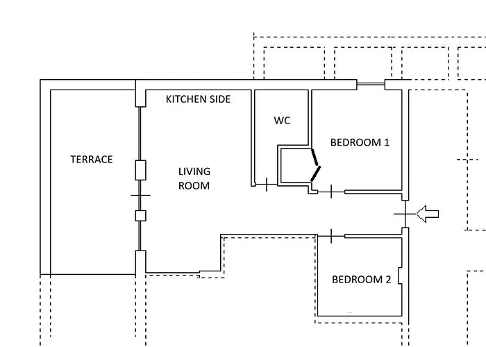
Beautiful 3-Room Apartment Ski-In Ski-Out Cervinia
O Beautiful 3-Room Apartment Ski-In Ski-Out Cervinia Breuil-Cervinia fica a 11 minutos a pé do Teleférico de Cieloalto.
Laghi Cime Bianche está a alguns passos deste apartamento, enquanto a estação estação de autocarros BUS Terminal está a 400 metros de distância.
No Beautiful 3-Room Apartment Ski-In Ski-Out Cervinia, bidé são fornecidos para aumentar o seu conforto.
O apartamento está equipado com cozinha equipada para aqueles que desejam preparar as suas próprias refeições. Uma caminhada de 10 minutos levará à Cieloalto. Os hóspedes podem relaxar no seu terraço.
Mais +
Menos -
Aguarde, estamos a verificar se existem quartos disponíveis para si.
Procurar hotéis
Comodidades
Principais características
- Wi-Fi
- Estacionamento grátis
- Animais
Instalações
Geral:
- Proibido fumar em todas as áreas
- Wi-Fi
- Estacionamento grátis
- Animais Admitidos
Facilidades do quarto:
- Terraço